Housing
Bethany College Residential Life is committed to providing quality programs and services that promote personal growth, foster the understanding of human diversity, and encourage academic success. Our professional and paraprofessional staff strive to offer a residential living and learning experience that not only supports but enriches your academic and personal success.
Bethany College is a residential campus, meaning full-time undergraduate students live on campus and participate in a meal plan. For the safety of our students, all residence halls are only accessible via keycard access and remain locked at all times.
Each residence room is furnished and comes with:
- Twin XL bed and frame
- Desk
- Chair
- Drawers
- Closet/Wardrobe
- Free in-hall laundry facilities
- Wifi
- Access to a private movie streaming service
- Private restrooms — typically shared with just one other room or reserved for a suite
- RA's and RD's on duty every day in each hall, accessible by cell phone to residents
If you are an incoming Bethany Swede looking to register for on/off campus housing, be sure to complete your application and steps on your status page, including the Enrollment/Housing Fee.
Have questions about the application process or planning a campus visit? Contact our Admissions team at admissions@bethanylb.edu.
Not sure what to pack for your room?
Take a look at what’s allowed (and what’s not) in the Residence Halls by checking out the
list here.
Outside Groups
Campus Housing Residence Halls are available for the months of June and July. Groups must reserve a minimum of 20 beds. Single and double rooms are available in the suite-style residence halls and single rooms are available in the apartment-style housing and New Hall. All campus housing is air conditioned.
Explore Residence Halls
New Hall (Applequist Hall)
New Hall (Applequist Hall) is a three story, suite style residence hall built in 2015. New Hall is unique in that each suite has private bedrooms, along with a shared bathroom and common space. This video showcases a Quad Floor Plan; however, New Hall also offers suite configurations designed to accommodate one, two, four, six, and ten residents. Additionally, New Hall offers many lobbies and study spaces for students to gather and collaborate.
Warner Hall
Warner Hall, renovated in 2022, is a three story, suite style residence hall with Jack-and-Jill-style private bathrooms. This video provides a look at Warner Hall’s floor plan. In addition to its comfortable living spaces, the Warner Hall offers spacious lobbies on each floor and a dedicated study room for students to use.
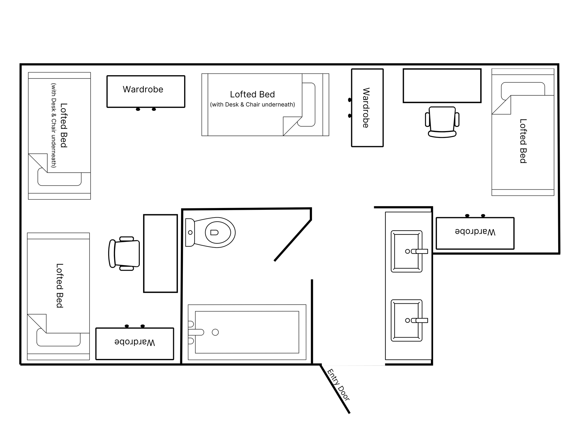
Gregory Hall
Gregory Hall, renovated in 2023, is a two story, suite style residence hall with Jack-and-Jill-style private bathrooms. This video showcases Gregory Hall’s floor plan. The hall offers spacious, square-shaped rooms, giving students flexibility in arranging their furniture. Additionally, each floor features two large lobbies, providing comfortable spaces for students to relax and connect.
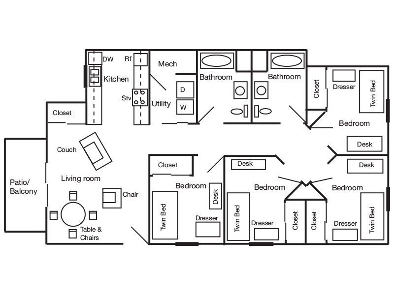
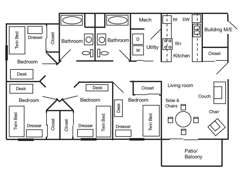
Swede Suites
Swede Suites is the only apartment-style housing complex on campus. It is reserved for upperclassmen (sophomores and above) but exceptions can be made for first year students with food allergies. Each apartment offers a kitchen, living room, laundry room, four bedrooms, and two bathrooms. Second and third floor apartments have a small balcony.
Begin the journey down your path.













